
Se muestran a continuación algunos de los trabajos desarrollados durante este curso.
VISTAS























VISTAS AXONOMÉTRICO






















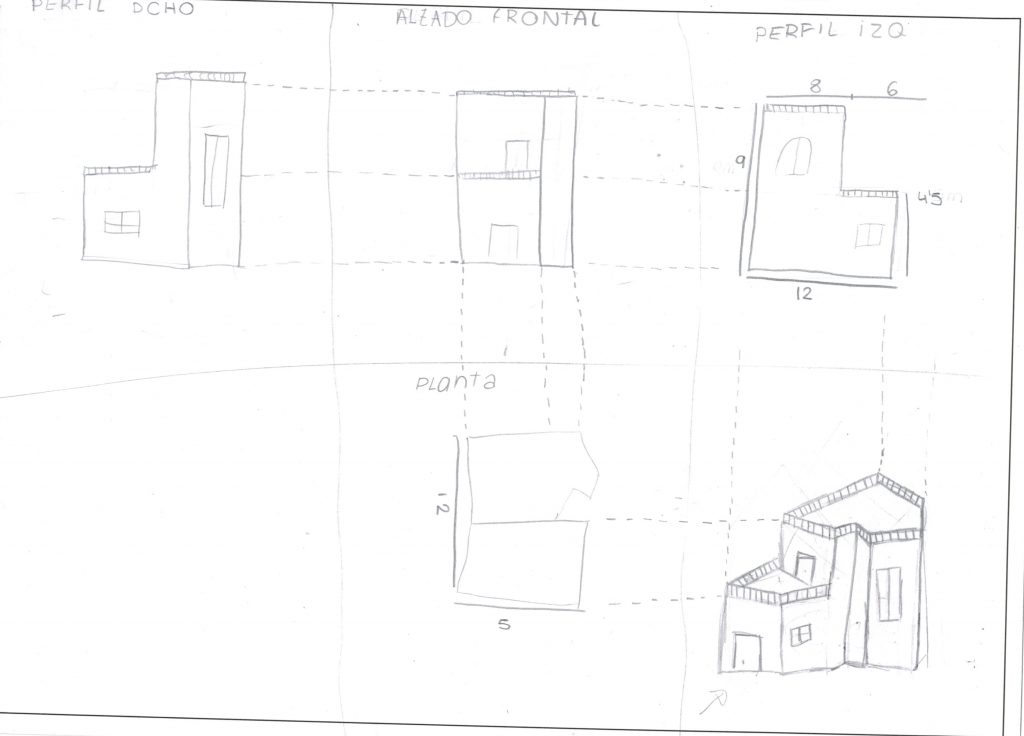
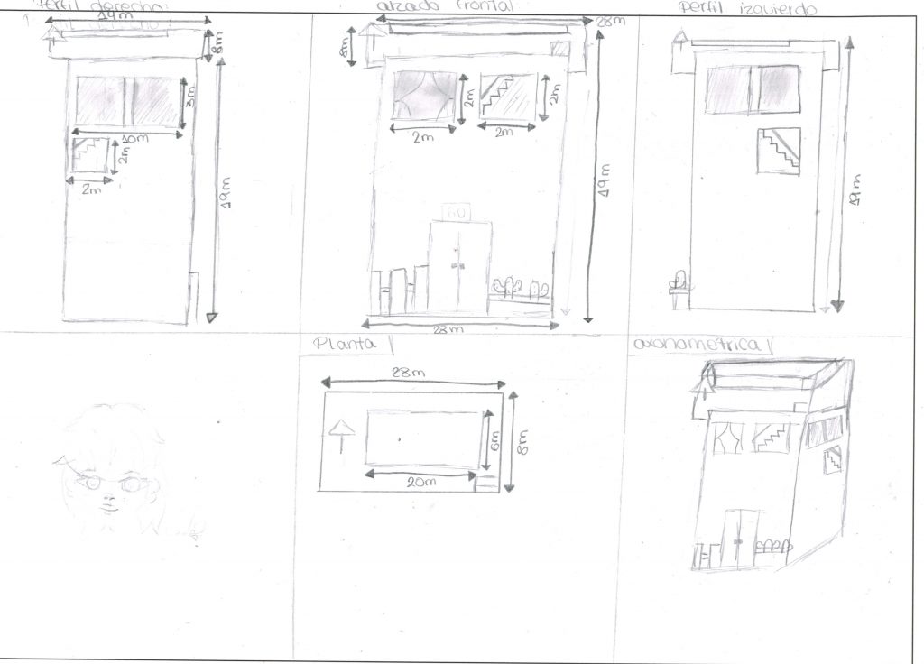
VISTAS EDIFICACIONES


























POR QUÉ REALIZAMOS ESTA ACTIVIDAD
La actividad “Vistas de Objeto Cotidiano” se realiza en la asignatura de plástica por varias razones educativas y formativas importantes:
- Desarrollo de habilidades técnicas de dibujo: Esta actividad enseña a los estudiantes a representar objetos tridimensionales en dos dimensiones a través de diferentes vistas (planta, alzado y perfil). Estas habilidades son fundamentales en muchas disciplinas técnicas, como la arquitectura, el diseño industrial y la ingeniería.
- Mejora de la percepción espacial: Al tener que pensar en cómo se ve un objeto desde diferentes ángulos, los estudiantes desarrollan su percepción espacial y su capacidad para visualizar formas en el espacio, lo que es crucial para cualquier forma de arte visual y diseño.
- Fomento del pensamiento crítico y la atención al detalle: Los estudiantes deben observar cuidadosamente el objeto y considerar todos sus detalles para poder representarlo fielmente desde varios ángulos. Esto les ayuda a mejorar su atención al detalle y a pensar críticamente sobre la forma y función del objeto.
- Promoción de la creatividad a través de objetos comunes: Al seleccionar objetos cotidianos para el dibujo, los estudiantes pueden ver lo ordinario de manera extraordinaria, promoviendo un enfoque creativo que pueden aplicar en diferentes aspectos de su aprendizaje y vida cotidiana.
- Desarrollo de habilidades de presentación y comunicación: La fase final de la actividad, donde los estudiantes deben explicar su trabajo y el proceso seguido, mejora sus habilidades de comunicación y presentación. Esto les prepara para futuras situaciones académicas y profesionales donde necesitarán expresar ideas de manera clara y efectiva.
- Interacción y colaboración entre estudiantes: Al compartir ideas y técnicas durante la actividad, se fomenta un ambiente de colaboración y apoyo mutuo. Esto no solo mejora la experiencia de aprendizaje individual sino que también construye habilidades sociales importantes.
En resumen, “Vistas de Objeto Cotidiano” es una actividad integral que combina técnica, arte y desarrollo personal. Proporciona a los estudiantes herramientas esenciales para su formación artística y técnica, mientras les permite explorar el mundo visual de una manera profundamente educativa y enriquecedora.